物件番号
写真画像
所在地 価格
物件名
土地面積
建物面積
間取
構造
築年月
引渡時期
詳細 画像
Bk13482
茨木市玉櫛2丁目10-15 480万円
茨木市玉櫛2丁目
33.05m2
37.3m2
2LDK
木造
S40/07
相談
間取あり写真あり写真あり
☆オーナーチェンジ物件です ☆月額家賃5万円 ☆周辺は商業施設も多く生活至便な立地です 

周辺施設
平和堂まで徒歩約4分 サンクスまで徒歩約4分 業務用食品館まで徒歩約3分 玉櫛小学校まで徒歩約6分 南中学校まで徒歩約6分
Bm13668
茨木市五十鈴町5-37 600万円
サンワ第7マンション
 
36.6m2
1DK
鉄筋コンクリート造
S47/10
相談
間取あり写真あり写真あり
☆収益物件です ☆月額家賃6万円(現状利回り12%) 2024年5月に室内リフォーム済み
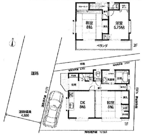
Bk13420
茨木市山手台3丁目26-71 2,180万円
茨木市山手台3丁目
134.78m2
98.43m2
3LDK
鉄筋コンクリート造
S53/08
相談
間取あり写真あり写真あり
☆フルリノベーション物件です ☆お手入れなしでご入居頂けます ☆閑静な住宅街の3LDK+駐車場1台可の物件です ☆両面道路につき陽当たり通風良好です

周辺施設
スーパーツジトミまで徒歩約1分 近畿大阪銀行まで徒歩約2分 山手台郵便局まで徒歩約2分 サニー幼稚園まで徒歩約2分 山手台中央公園まで徒歩約3分
Bk14947
茨木市西安威1丁目11-17 2,280万円
茨木市西安威1丁目
156.5m2
111.62m2
6LDK
木造
S43/06
相談
間取あり写真あり写真あり
☆閑静な住宅街の土地面積約48.39坪の物件です ☆6LDK ☆建て替え用地としてもご検討頂けます

周辺施設
ニッコーまで徒歩約5分 安威郵便局まで徒歩約6分 北中学校まで徒歩約4分 耳原公園まで徒歩約5分
Bk14683
茨木市山手台7丁目20-8
2,480万円
茨木市山手台7丁目
189.03m2
136.28m2
4LDK
軽量鉄骨造
H01/04
相談
間取あり写真あり写真あり
☆閑静な住宅街の南西角地物件です ☆積水ハウス施工の丈夫な軽量鉄骨造の家 ☆駐車場2台可 ☆近年各種リフォーム歴あり

周辺施設
山手台小学校まで徒歩約15分 山手台中央公園まで徒歩約16分 サニータウンショッピングモールまで徒歩約17分
Bk14749
茨木市真砂1丁目19-31 2,680万円
茨木市真砂1丁目
50m2
84.24m2
3LDK
木造
H10/11
相談
間取あり写真あり写真あり
☆人気の真砂1丁目 ☆3LDK+駐車場1台可 ☆2025年8月に室内リフォーム済みの物件です ☆近隣商業施設も充実の生活至便な立地です

周辺施設
葦原小学校まで徒歩約4分 南中学校まで徒歩約6分 真砂第二公園まで徒歩約2分 平和堂まで徒歩約5分 セブンイレブンまで徒歩約2分
Bk13756
茨木市南安威3丁目11-40-2
2,700万円
茨木市南安威3丁目
80.31m2
81.46m2
2LDK
木造
H14/03
相談
間取あり写真あり写真あり
☆静かな住宅街の平成14年築の物件です ☆2023年10月に室内リフォーム歴あり ☆ロフトや勾配天井などこだわりの邸宅 ☆高台につき陽当り、眺望、通風良好です ☆南西角地物件

周辺施設
北中学校まで徒歩2分 安威小学校まで徒歩約9分 ニッコーまで徒歩約2分 耳原公園まで徒歩約3分 アルプラザまで徒歩約13分
Bk9268
 
茨木市西福井2丁目13-13 2,780万円
茨木市西福井2丁目
104.92m2
116.2m2
5LDK
木造
H24/07
相談
只今商談中の物件です。
 
☆閑静な住宅街の平成24年建築の物件です ☆4LDK+ロフト×2、小屋裏収納付き ☆収納力たっぷりです ☆安全安心のオール電化住宅 ☆長期優良住宅です

周辺施設
平和堂まで徒歩約10分 キリン堂まで徒歩約8分 福井郵便局まで徒歩約8分 警察病院まで徒歩約5分 サークルKまで徒歩約4分
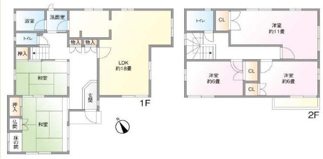
Bk12759
茨木市北春日丘1丁目18-19 2,980万円
茨木市北春日丘1丁目
195.51m2
139.08m2
6LDK+S
木造
S52/07
相談
間取あり写真あり写真あり
☆閑静な住宅街の土地面積約59.14坪の物件です ☆6SLDK+駐車可1台可 ☆ゆとりのある間取りですのでご家族の多い方、二世帯の方にも最適です ☆建替え用地としてもご検討頂けます

周辺施設
西中学校まで徒歩約6分 茨木病院まで徒歩約8分 ☆グルメシティまで徒歩約9分 ファミリーマートまで徒歩約8分
Bk14646
茨木市上野町3-16-4 2,980万円
茨木市上野町
96.32m2
92.74m2
4DK
木造
 
相談
間取あり写真あり写真あり
☆静かな住宅街の4LDK+駐車場2台可の物件です ☆2025年に外壁塗装済み ☆収納が多いお家です ☆室内丁寧にお使いです 

周辺施設
アルプラザまで徒歩約12分 業務スーパーまで徒歩約12分 耳原小学校まで徒歩約9分 北中学校まで徒歩約15分 耳原公園まで徒歩約12分 コーナンまで徒歩約15分
Bk15041
茨木市山手台新町2丁目11-14 3,080万円
茨木市山手台新町2丁目
175.15m2
111.99m2
4LDK
木造
H28/06
相談
間取あり写真あり写真あり
☆平成28年6月建築の4LDK+WIC+駐車場2台可の物件です ☆土地面積約52.98坪 ☆二階部各居室にはすべてWICがございますので収納力たっぷり! ☆安心の長期優良住宅です

周辺施設
山手台小学校まで徒歩約2分 サニー幼稚園まで徒歩約4分 山手台保育園まで徒歩約7分 スーパーツジトミまで徒歩約3分
Bk15045
茨木市鮎川1丁目20-39-4 3,200万円
茨木市鮎川1丁目
79.4m2
105.57m2
4LDK
木造
H12/04
相談
間取あり写真あり写真あり
☆現在賃貸中の物件です ☆月額家賃13万円 ☆静かな住宅街の平成12年築の物件です ☆4LDK+駐車場2台可 ☆周辺は商業施設も充実していて生活至便な立地です

周辺施設
鮎川学園鮎川幼稚園:徒歩約9分 白川小学校:徒歩約10分 東雲中学校:徒歩約6分 スーパーフレスコ:徒歩約5分
Bk13863
茨木市花園2丁目22-16 3,280万円
茨木市花園2丁目
105m2
97.4m2
2LDK+S
木造
H25/05
相談
間取あり写真あり写真あり
 ☆閑静な住宅街の二世帯仕様の物件です ☆2SLDK+DK ☆駐車場2台可 ☆2013年建築の物件です ☆現況空き家ですのでいつでもゆっくりとご見学頂けます

周辺施設
藍野花園病院まで徒歩約4分 太田小学校まで徒歩約2分 太田中学校まで徒歩約8分 スーパーマルヤスまで徒歩約12分 藍野病院まで徒歩約10分
Bk13757
茨木市耳原3丁目13-13 3,430万円
茨木市耳原3丁目
88.06m2
115.28m2
4LDK
木造
R03/05
相談
間取あり写真あり写真あり
☆静かな住宅街の北西角地物件 ☆2021年5月建築の築浅物件 ☆耳原公園が一望できる眺望の良い立地です ☆SCL、洗面台2台、トイレ2箇所他設備も充実

周辺施設
耳原小学校まで徒歩約2分 耳原公園まで徒歩約3分 アルプラザまで徒歩約5分 北中学校まで徒歩約5分 ニッコーまで徒歩約10分
Bk13685
茨木市山手台7丁目14-28 3,480万円
茨木市山手台7丁目
176.1m2
99.78m2
2LDK
軽量鉄骨造
S62/03
相談
間取あり写真あり写真あり
☆閑静な住宅街の南西角地物件です ☆ハウスメーカー施工のフルリノベーションの家 ☆太陽光発電システム+蓄電池搭載のエコ住宅です

周辺施設
茨木サニータウンショッピングモールまで徒歩約15分 サニー幼稚園まで徒歩約14分 山手台小学校まで徒歩約16分 山手台中央公園まで徒歩約15分
Bk14291
茨木市北春日丘2丁目17-24 3,490万円
茨木市北春日丘2丁目
152.43m2
155.84m2
5SDK
鉄筋コンクリート造
S57/06
相談
間取あり写真あり写真あり
☆閑静な住宅街の5SDKの物件です ☆各種リフォーム歴がありますので、即入居可能です ☆土地面積約64.11坪 ☆屋上からの眺望は良好です

周辺施設
松沢池公園まで徒歩約3分 西小学校まで徒歩約8分 スーパーマルヤスまで徒歩約12分 ファミリーマートまで徒歩約12分 阪大前病院まで徒歩約16分
Bk15001
茨木市鮎川1丁目20-4 4,280万円
茨木市鮎川1丁目
100.22m2
101.92m2
4LDK
木造
H12/12
相談
間取あり写真あり写真あり
☆2025年10月にリフォーム済みの物件です ☆お手入れなしでご入居頂けます ☆各居室6帖以上のゆとりのある間取りです ☆東西両面バルコニー ☆収納力もたっぷりです

周辺施設
フレスコまで徒歩約1分 スギ薬局まで徒歩約1分 ローソンまで徒歩約2分 鮎川郵便局まで徒歩約3分 奥田医院まで徒歩約4分
Bk15083
茨木市島4丁目17-4 4,399万円
茨木市島4丁目
132.24m2
104.78m2
3LDK
木造
H17/12
相談
間取あり写真あり写真あり
☆2026年2月にリフォーム済みの物件です ☆お手入れなしでご入居頂けます ☆2005年12月建築の3LDK ☆土地面積約40坪

周辺施設
葦原小学校まで徒歩約17分 南中学校まで徒歩約25分 ファミリーマートまで徒歩約8分 アプロまで徒歩約15分
Bk15323
茨木市西安威1丁目8-8 4,480万円
茨木市西安威1丁目
182.32m2
110.16m2
2LDK
木造
R06/06
新築
相談
間取あり写真あり写真あり
☆新築未入居物件です ☆南向きで陽当たり良好です ☆吹き抜けのある明るいお家です ☆駐車場2台可 ☆空き家ですのでいつでもゆっくりご見学頂けます ☆外構工事費用等別途必要です

周辺施設
安威小学校まで徒歩約10分 北中学校まで徒歩約4分 食品館ちゃお安威店まで徒歩約5分 耳原公園まで徒歩約8分 北大阪けいさつ病院まで徒歩約17分
Bk15124
茨木市鮎川3丁目15-18(2号地) 4,680万円
茨木市鮎川3丁目
115.1m2
106.08m2
4LDK
木造
R05/06
相談
間取あり写真あり写真あり
☆新築未入居物件です ☆即入居可 ☆閑静な住宅街の4LDK+駐車場2台可 ☆耐震等級3取得の地震に強い家です ☆床暖房、ミストサウナ他、充実の設備

周辺施設
業務スーパーまで徒歩約3分 キリン堂まで徒歩約4分 鮎川幼稚園まで徒歩約2分 白川小学校まで徒歩約6分 フレスコまで徒歩約9分